Меню Поиск Разместить Избранное Кабинет

Продается 2-комн. квартира 52.2 м²

Объявление 257185, обнов. 03.02.26
19
5 300 000 ₽ 101 533 ₽/м²
Следить за ценой

Подписка на изменение цены

Мы сообщим вам, если цена объекта изменится
или на почту
Нажимая кнопку «Подписаться» вы соглашаетесь с политикой конфиденциальности
Купить в ипотеку:
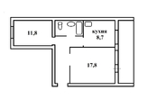
Общая площадь
52.2 м²
Площадь кухни
8.7 м²
Этаж / всего
1 / 9
Санузел
Совмещенный
Лоджия
1
Ремонт/отделка
Хорошее состояние

Продам 2-комнатную квартиру распашной планировки.
Во дворе дома находится одна из лучших гимназий города с бассейном. Рядом есть всё: детские сады, поликлиники, торговые центры, остановки общественного транспорта. Квартира очень теплая, имеется вместительная лоджия. Документы проверены и готовы к продаже. Ключи в агентстве. Более подробная информация при осмотре квартиры. Номер объявления SD70-257185.

Эльмира Бембель
По вопросам покупки обращаться:
Позвонить
Скажите агенту, что нашли это объявление на СИБДОМЕ
Написать

Похожие объявления

Не можете найти нужный вариант?

Оставьте заявку на подбор объекта и мы отправим ее трем проверенным нами агентствам недвижимости. Они возьмут все вопросы поиска на себя.
Нажимая кнопку «Отправить заявку» вы соглашаетесь с политикой конфиденциальности.