Меню Поиск Разместить Избранное Кабинет

Продается торговая площадь, 2844 м²

Объявление 255538, обнов. 01.11.25
6
500 ₽ 0 ₽/м²
Следить за ценой

Подписка на изменение цены

Мы сообщим вам, если цена объекта изменится
или на почту
Нажимая кнопку «Подписаться» вы соглашаетесь с политикой конфиденциальности
Адрес
Томск, Ленинский, Мостовая ул
Этаж
1
Общая площадь
2844 м²

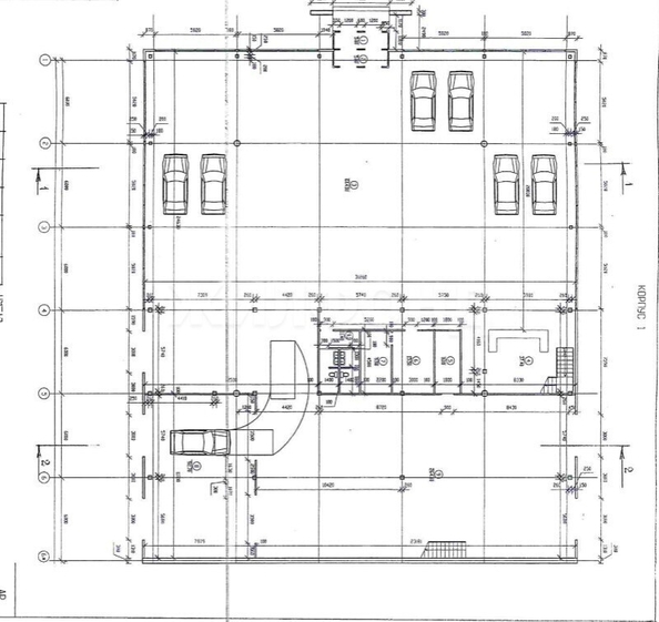
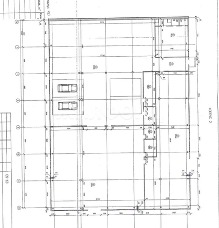
Сдается в аренду отдельностоящее здание в Томске!

500 руб. за кв.м.

Адрес: г. Томск, ул. Мостовая, 38г

Площадь: 2844,1 м2

Земельный участок: 9454 м2

Это здание идеально подходит для автоцентра и включает в себя:

Выставочный зал для демонстрации автомобилей

Офисы для продаж

Ремонтные боксы

Здание состоит из двух корпусов практически равной площади с свободной планировкой и высокими

потолками (до 7,5 м), что позволяет реализовать любые идеи.

Инженерные сети и оборудование:

Электроснабжение: 176 кВт с возможностью увеличения нагрузки до 400 кВт благодаря собственной

подстанции.

Теплоснабжение: от мобильной газовой котельной мощностью 0,60 МВт.

Водоснабжение: питьевая вода привозная, техническая вода из скважины, септик.

Это отличная возможность для бизнеса! Не упустите шанс арендовать пространство, идеально подходящее

для вашего проекта.

Для подробной информации и организации просмотра звоните!

JC000020030014 Номер объявления SD70-255538.

Степанов Семен Леонидович
По вопросам покупки обращаться:
Позвонить
Скажите агенту, что нашли это объявление на СИБДОМЕ
Написать

Похожие объявления

Не можете найти нужный вариант?

Оставьте заявку на подбор объекта и мы отправим ее трем проверенным нами агентствам недвижимости. Они возьмут все вопросы поиска на себя.
Нажимая кнопку «Отправить заявку» вы соглашаетесь с политикой конфиденциальности.