Меню Поиск Разместить Избранное Кабинет

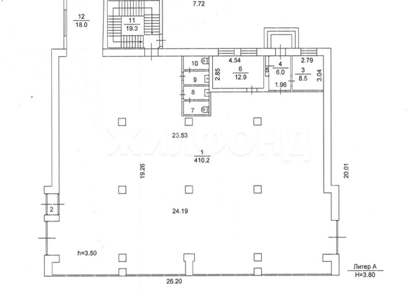
Продается торговая площадь, 430 м²

Объявление 255514, обнов. 01.11.25
5
500 ₽ 1 ₽/м²
Следить за ценой

Подписка на изменение цены

Мы сообщим вам, если цена объекта изменится
или на почту
Нажимая кнопку «Подписаться» вы соглашаетесь с политикой конфиденциальности
Адрес
Томск, Кировский, Ломоносова ул
Этаж
1
Общая площадь
430 м²

Сдам в аренду торговое помещение 430 кв.м. Свободная планировка.Подходит под любой вид деятельности от

ритейла до демонстрации собственного производства. Полностью готово к эксплуатации. На втором этаже

офисное пространство кабинетного типа 360 кв.м. Также имеется

отдельно стоящее здание 320 кв.м. с производственно- офисными площадями.

Возможна аренда как всего комплекса, так и частично.

Адрес: ул. ломоносова 42. Закрытая территория. Большая парковка. Доступ 24/7.

Электричество до 400 Квт. Вода центральная. Отопление местное.

Звоните. Организую просмотр. Отвечу на все вопросы.

JC000020020018 Номер объявления SD70-255514.

Степанов Семен Леонидович
По вопросам покупки обращаться:
Позвонить
Скажите агенту, что нашли это объявление на СИБДОМЕ
Написать

Похожие объявления

Не можете найти нужный вариант?

Оставьте заявку на подбор объекта и мы отправим ее трем проверенным нами агентствам недвижимости. Они возьмут все вопросы поиска на себя.
Нажимая кнопку «Отправить заявку» вы соглашаетесь с политикой конфиденциальности.